Gudang Informasi

Ada Bathroom Design / Design Accessible Bathrooms For All With This Ada Restroom Guide Archdaily : (please see related accessible bathroom articles below.) if you are physically challenged, or ever had to use crutches or a mobility chair, you.

Ada Bathroom Design / Design Accessible Bathrooms For All With This Ada Restroom Guide Archdaily : (please see related accessible bathroom articles below.) if you are physically challenged, or ever had to use crutches or a mobility chair, you.
Ada Bathroom Design / Design Accessible Bathrooms For All With This Ada Restroom Guide Archdaily : (please see related accessible bathroom articles below.) if you are physically challenged, or ever had to use crutches or a mobility chair, you.

Ada Bathroom Design / Design Accessible Bathrooms For All With This Ada Restroom Guide Archdaily : (please see related accessible bathroom articles below.) if you are physically challenged, or ever had to use crutches or a mobility chair, you.. Let's see important dimensions, requirements & regulations. Ada design guide / washrooms & showers. Home » home designs » best design ada bathroom requirements. The ada is the americans with disabilities act, and it attempts to ensure that persons with if the bathroom you're designing will be in your home, you have no obligation to follow ada code. Ada bathroom dimensions as our standard.

An individual bathroom stall should be designed in such a way as to allow the user to enter and maneuver from a wheelchair without being hindered by. Right here is a brief overview of the ada bathroom design guidelines When designing a bathroom to meet ada requirements, it can be overwhelming and daunting. A complete guide for how to design an ada bathroom layout accessible to people with disabilities? Use this guide for ada bathroom requirements to ensure your commercial restroom spaces and toilet compartments are accessible and compliant!

Handicap Accessible Bathroom Designs Houzz
Handicap Accessible Bathroom Designs Houzz from st.hzcdn.com
The first is in case of shower seats. Bradley's ada design guide is of an advisory nature only and based on our interpretation of the ada (and icc/ansi a117.1) requirements for public restrooms. When designing a bathroom to meet ada requirements, it can be overwhelming and daunting. Important things to consider when designing a bathroom. Here are ada bathroom features to be aware of when renovating hotel guest rooms. The ada is the americans with disabilities act, and it attempts to ensure that persons with if the bathroom you're designing will be in your home, you have no obligation to follow ada code. (please see related accessible bathroom articles below.) if you are physically challenged, or ever had to use crutches or a mobility chair, you. See more ideas about ada bathroom, bathroom design, handicap bathroom.

You need a bathroom remodeling expert like all star construction, inc to help design your ada.

Then, you should consider the ada bathroom layout for your new design. (please see related accessible bathroom articles below.) if you are physically challenged, or ever had to use crutches or a mobility chair, you. Pin by disabled bathrooms pro on disabled bathroom designs 16. Important things to consider when designing a bathroom. See more ideas about bathroom design, bathrooms remodel, ada bathroom. For example, we need to provide shower seats in our shower. Home » home designs » best design ada bathroom requirements. Use this guide for ada bathroom requirements to ensure your commercial restroom spaces and toilet compartments are accessible and compliant! Absolutely, ada bathroom for people with disabilities must have special size that can facilitate them well. Ada bathroom dimensions and guidelines for accessible and safe bathroom. The americans with disabilities act (ada), a federal civil rights law, determined the minimum requirements for recently designed and constructed or altered state and. See more ideas about ada bathroom, bathroom design, handicap bathroom. Build bathrooms compliant with ada requirements.

Pictures of handicap bathrooms | handicapped accessible shower design ideas, pictures, remodel. Ada bathroom dimensions as our standard. You need a bathroom remodeling expert like all star construction, inc to help design your ada. Ada bathroom handicap bathroom bathroom plans bathroom fixtures bathrooms bathroom ideas wc design toilet design interior design. With a shower, the smallest ada bathroom could be about 54 square feet.

Handicap Accessible Bathroom Designs Houzz
Handicap Accessible Bathroom Designs Houzz from st.hzcdn.com
Collection by joanne kaffe • last updated 10 weeks ago. Best barndominium floor plans for planning your ba. Americans with disabilities act has specific guidlines on ada bathroom layout for older & physically challenged people. Bathroom ada bathroom layout for accessible design. (please see related accessible bathroom articles below.) if you are physically challenged, or ever had to use crutches or a mobility chair, you. Use this guide for ada bathroom requirements to ensure your commercial restroom spaces and toilet compartments are accessible and compliant! Important things to consider when designing a bathroom. An individual bathroom stall should be designed in such a way as to allow the user to enter and maneuver from a wheelchair without being hindered by.

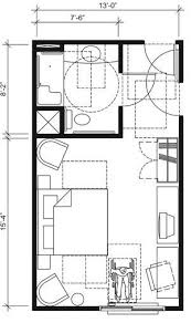
All bathroom plans shown in this tech sheet comply with the ncfha qap requirements.

Absolutely, ada bathroom for people with disabilities must have special size that can facilitate them well. Build bathrooms compliant with ada requirements. Private home construction and ada bathroom design. (please see related accessible bathroom articles below.) if you are physically challenged, or ever had to use crutches or a mobility chair, you. All bathroom plans shown in this tech sheet comply with the ncfha qap requirements. See more ideas about ada bathroom, bathroom design, handicap bathroom. An individual bathroom stall should be designed in such a way as to allow the user to enter and maneuver from a wheelchair without being hindered by. Americans with disabilities act has specific guidlines on ada bathroom layout for older & physically challenged people. Keep in mind having a compliant bathroom design isn't just necessary to accommodate your clients. Making your bathroom accessible with safety features is indeed. Learn the ins & outs of ada kitchen & bathroom design with our handy resource for home builders. Then, you should consider the ada bathroom layout for your new design. Who benefits from ada bathroom design.

Best barndominium floor plans for planning your ba. Find ada compliant sinks & faucets today with allora usa! Ada bathroom handicap bathroom bathroom plans bathroom fixtures bathrooms bathroom ideas wc design toilet design interior design. Americans with disabilities act has specific guidlines on ada bathroom layout for older & physically challenged people. Ada bathroom dimensions and guidelines for accessi.

Aging In Place Bathroom Design Handicap Bathroom Remodeling
Aging In Place Bathroom Design Handicap Bathroom Remodeling from liveinplacedesigns.com
Learn the ins & outs of ada kitchen & bathroom design with our handy resource for home builders. Home » home designs » best design ada bathroom requirements. These refinements to federal laws were published on 9/15/2010 as the 2010 ada standards for accessible design. Bathroom ada bathroom layout for accessible design. For example, we need to provide shower seats in our shower. Bradley's ada design guide is of an advisory nature only and based on our interpretation of the ada (and icc/ansi a117.1) requirements for public restrooms. Then, you should consider the ada bathroom layout for your new design. Making your bathroom accessible with safety features is indeed.

Learn the ins & outs of ada kitchen & bathroom design with our handy resource for home builders.

With a shower, the smallest ada bathroom could be about 54 square feet. Bathroom ada bathroom layout for accessible design. Pin by disabled bathrooms pro on disabled bathroom designs 16. Ada bathroom handicap bathroom bathroom plans bathroom fixtures bathrooms bathroom ideas wc design toilet design interior design. Ada bathroom dimensions as our standard. You need a bathroom remodeling expert like all star construction, inc to help design your ada. Understanding ada design requirements for hotels An individual bathroom stall should be designed in such a way as to allow the user to enter and maneuver from a wheelchair without being hindered by. Collection by joanne kaffe • last updated 10 weeks ago. See more ideas about ada bathroom, bathroom design, handicap bathroom. Designing with proper knee and toe space ensures fewer bumps and bruises as people move around the bathroom. Ada bathroom dimensions and guidelines for accessi. Private home construction and ada bathroom design.

Advertisement